Summary
The main problem in designing this project is its adjacence to old buildings on the western side, on the one hand, and neighboring a modern and high-rise building on the eastern side, on the other hand, and how to deal with this issue
Year
2022
Location
Yousefabad, Tehran, Iran
Category
Office and Commercial
Service(s)
Architecture Design
Interior Design
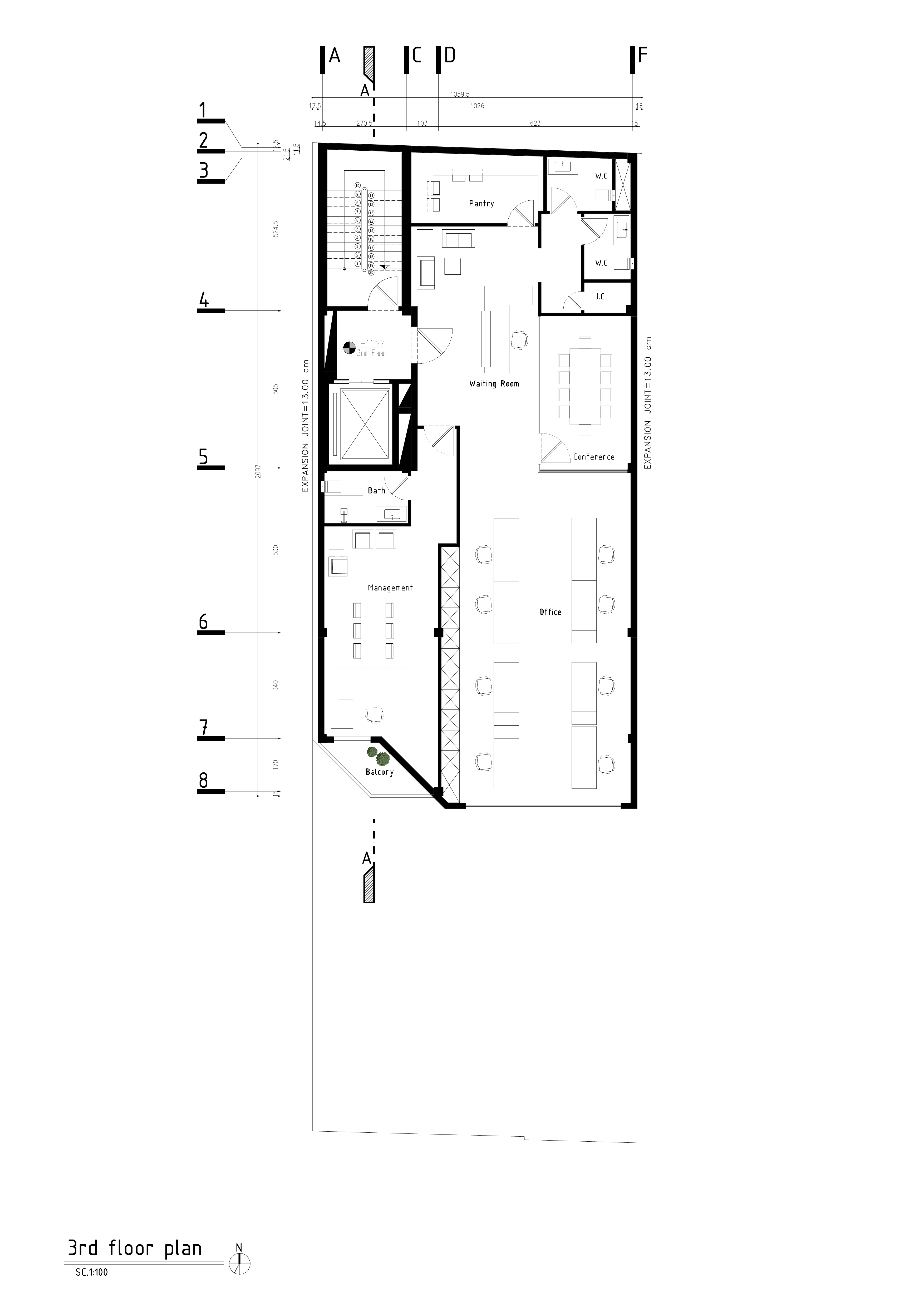
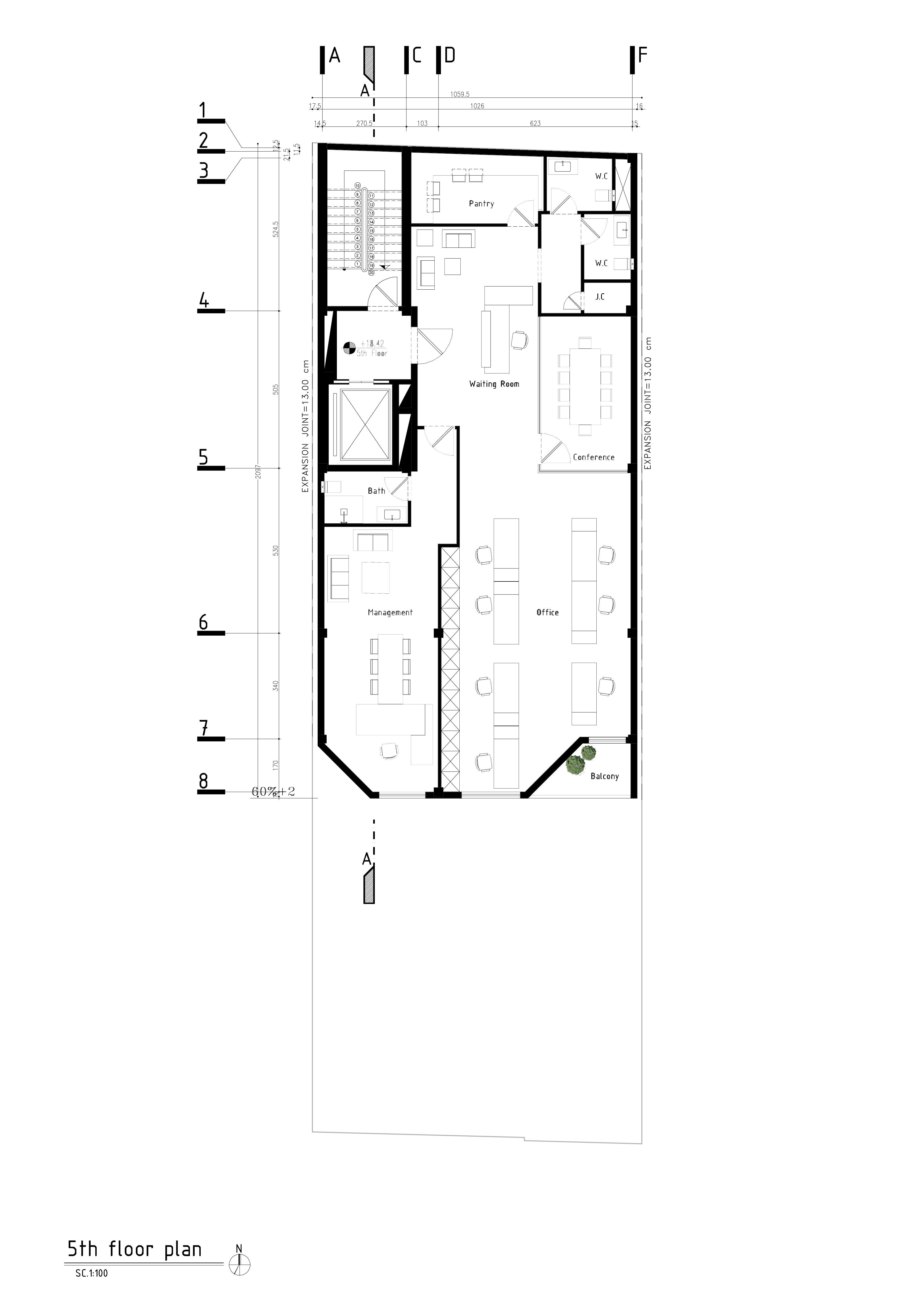
“VIRA II” office building is located in Yusefabad neighborhood in the central part of Tehran. This neighborhood is practically the host of both administrative and residential land uses and is assumed among the highly important and valuable zones of Tehran city. This building has been constructed with a plot area of 340m2 and has a total gross area of 2035m2 including a ground floor, six floors with administrative use and a useful area of 180m2 on each floor, and two basement floors. The parking lots are located on the basement and ground floors.
The main problem in designing this project is its adjacence to old buildings on the western side, on the one hand, and neighboring a modern and high-rise building on the eastern side, on the other hand, and how to deal with this issue. Coordination with the two adjacencies differs both in terms of Function and in terms of form and scale. The western neighbors of the project are apartments mostly with residential use and 3 and 4-storey height, which are assumed as small-scale structures in Tehran metropolis and fully obey the municipal criteria in terms of form. In other words, these buildings have been constructed in full compliance with the dominant typology of the urban texture of Tehran. On the eastern side, this building is adjacent to a modern and high-rise building with administrative-commercial use, which is evidently different from the western neighbors in terms of scale, function, and form.
In dealing with the abovementioned problem, the primary challenge of the design team was the existence of an imposed bevel on the western side and avoidance of the form-related obedience to the typology resulting from compliance with the criteria. Therefore, in the presented concept, the bevel not only has been utilized as a repetitive urban motif but also has gained a higher functionality through multiplication in volume and recess towards the east in the central part of the building facade and serves as a tool for transforming the 2D face into a 3D active volume. The application of this approach and dividing the building into three overlapping volumes results in a better juxtaposition with the western neighbors in terms of scale. Furthermore, by using transparent surfaces in a major part of the main building facade and also by using repetitive balconies with the potential of locating green spaces, it has been attempted to establish better coordination with the eastern neighbors.
As for the materials used in the building facade, it should be noted that considering the diversity of the materials in the neighboring buildings, the color functionality of the building has been reduced by using neutral and greyish colors in the project walls. The rigid parts of the southern face of the building is made of GFRC panels and metal sheets with dark gray coating color. The vertical elements and shaders contribute to the improvement of the climatic performance (controlling the southern and southwestern sunlight). At the end, it must be noted that the “VIRA II” attempts to have positive interactions with its surrounding urban sight, while maintaining its independent identity as a building, and avoiding being indifferent to the urban landscape.






















