Summary
Mika 911 project was constructed aiming at establishing a medium size administrative building in an area with a high concentration of administrative region in Tehran. Accordingly, and in the design phase of the project, the design team has always tried to take into account the technology and its balanced application in the construction of the building, taking into account the project's economy and pursuing investment goals, as well as a metaphorical look at the Iranian rich architecture, in order to create a distinct but homophonic project with the urban context.
Year
2024
Location
Austin, TX
Category
Office and Commercial
Service(s)
Interior Design
Urban Planning
Architecture Design
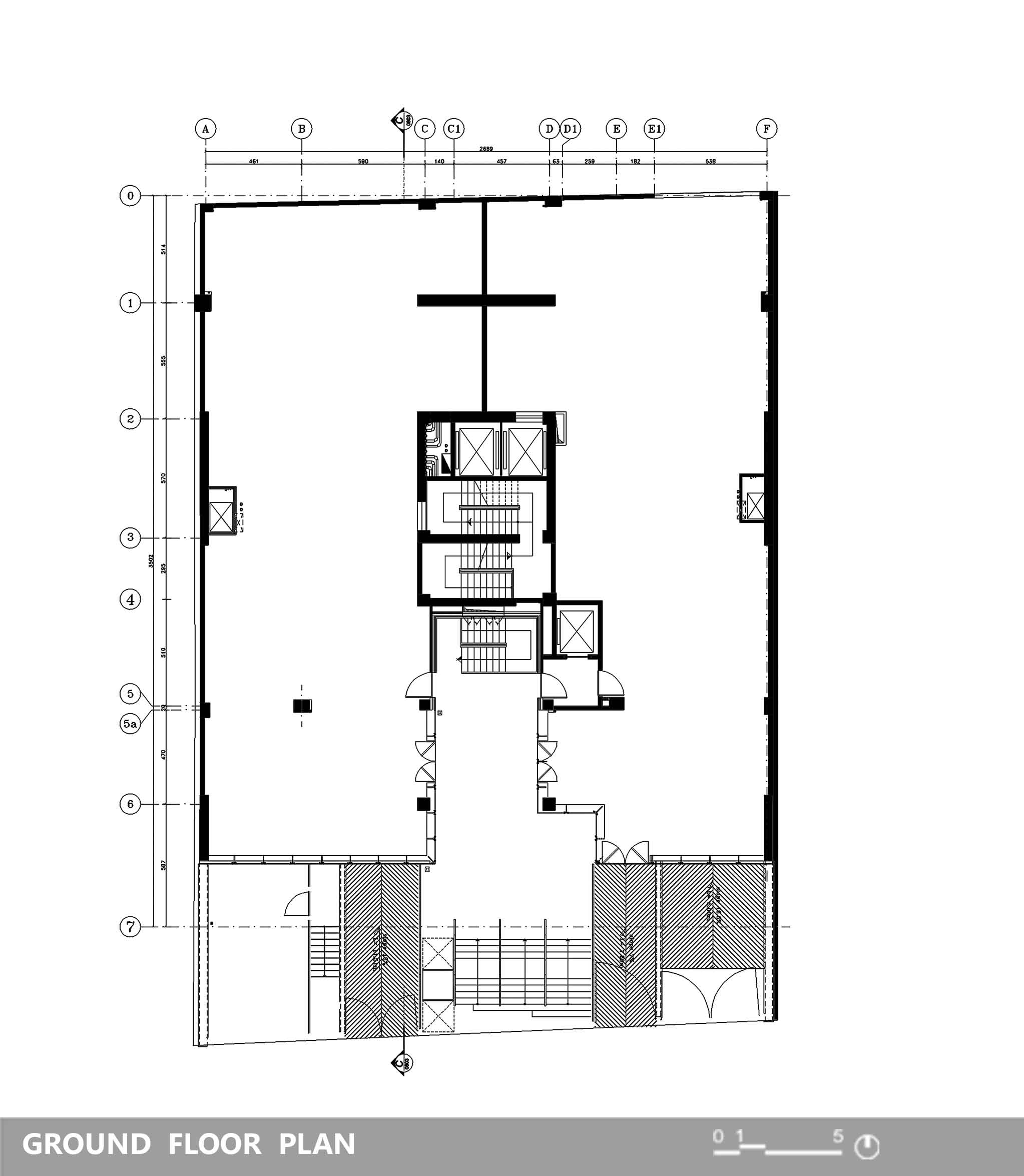
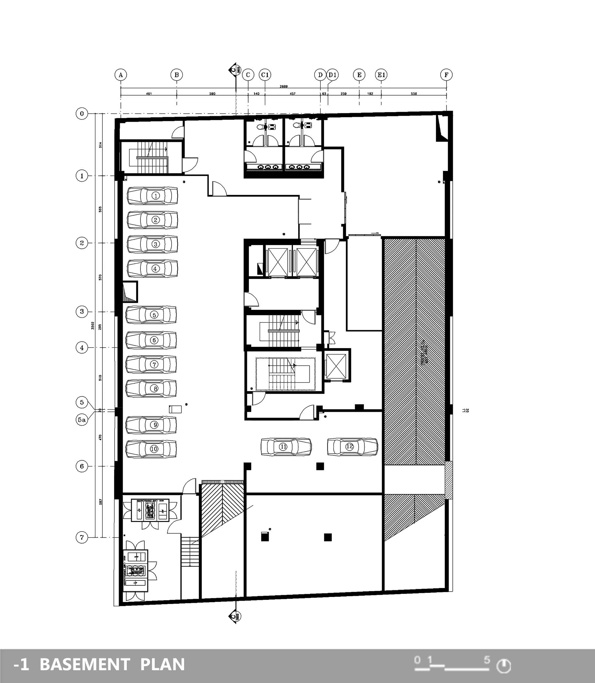
The Mica 911 building is located in the 3rd district of Tehran, in the Jordan Street, Arash Blvd., on an area of 1120 square meters. This project with a concrete structure is about 10,000 square meters, consisting of 15 floors of 5 underground floors with parking and facilities, ground floor with business use on the south side, entrance and administrative lobby on the north side, with 9 floors of administrative units. The project cooling system is Chiller and its heating system includes the central engine room, which was completed in June 2018.
Considering its location on the urban fabric, Mika 911 has an independent entrance from the north side as the entrance to the administrative space and an entrance from the south side as the entrance to the business spaces and parking lots.
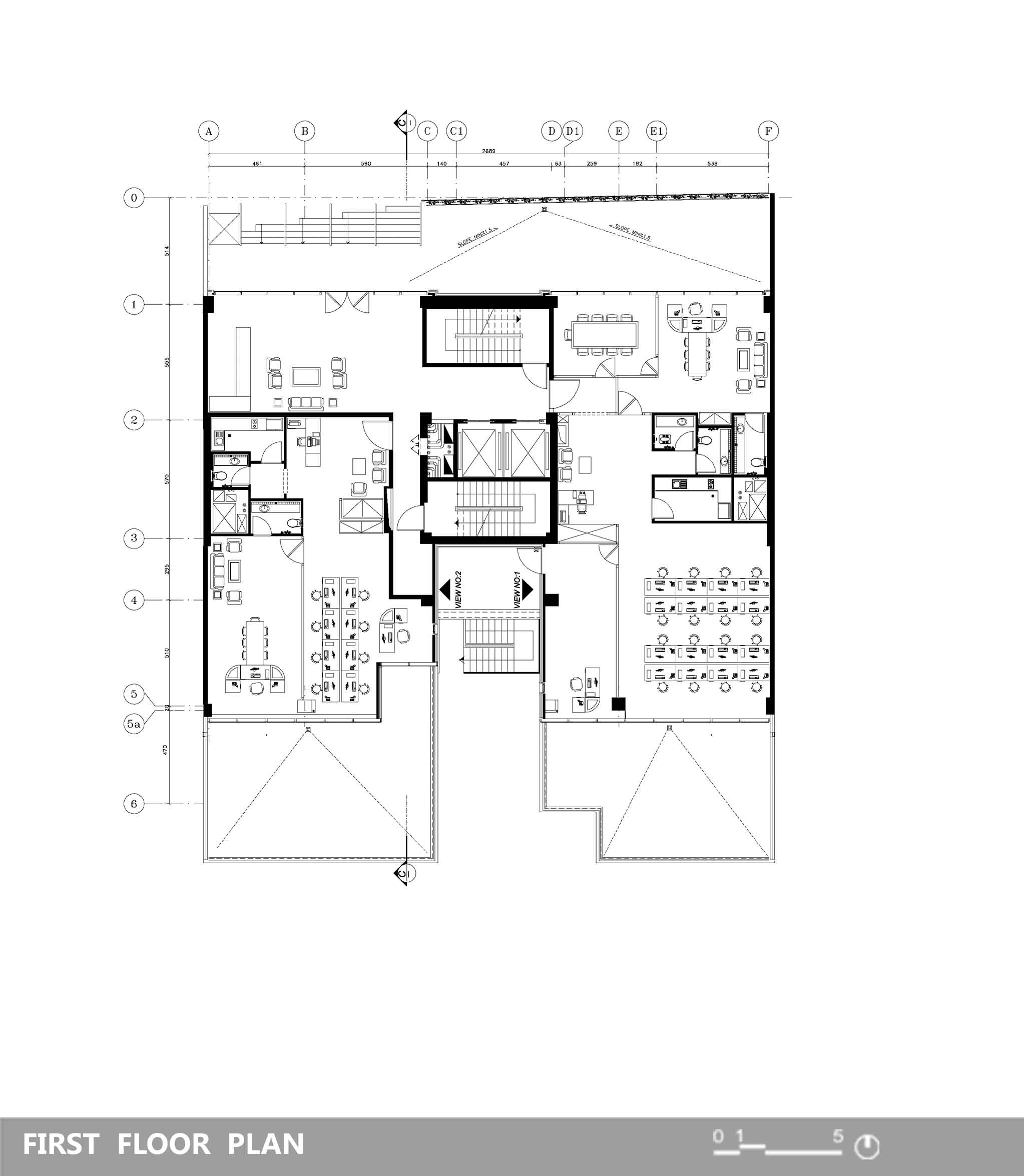
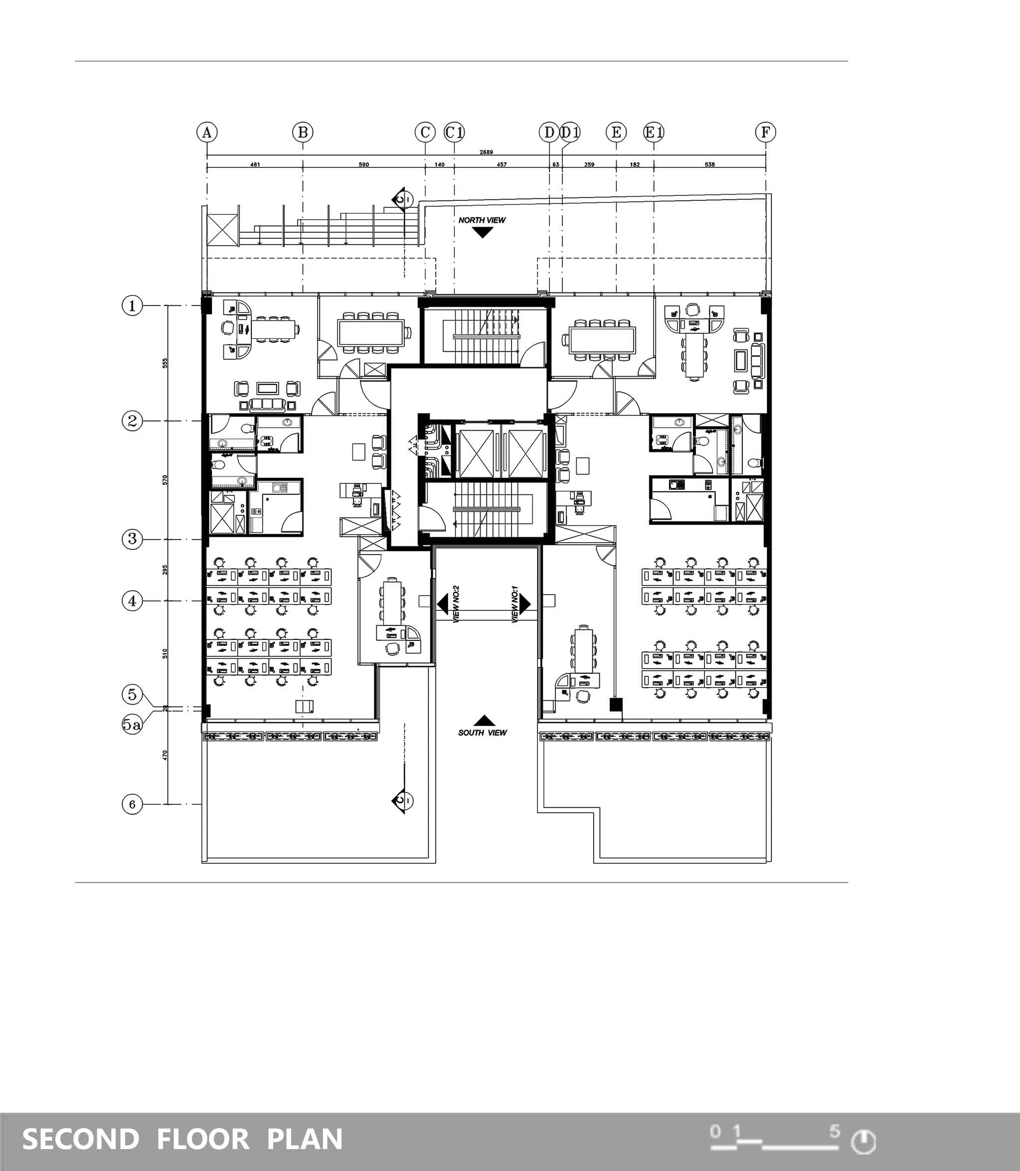
The main idea of the design is making a distinction between the internal uses of the project, distinct from the dual administrative spaces in two separate volumes in the upper floors, and the commercial space on ground floor in a homogeneous and integrated structure.
Accordingly, the main volume of the building in the administrative section is divided into two separate volumes to manifest identity and distinctions of interior spaces in the view, while the middle floors cavity can be used to facilitate the penetration of sunlight into the interior spaces of the floor plan. Also, in order to satisfy the client's desire to divide the commercial space into two separate units, as well as to coordinate the upper floors with the ground floor, the cavity was also planned on the ground floor.
In order to create the integrity of the outer shell and induce a united identity into the complex, the south face was turned into a modular network. By shifting these modules along the east and west, while trying to create independent terraces for some administrative units, attempt was made to present metaphorical reference to the cornerstone approach in Iranian architecture, with the use of repetitive geometry to change the shape of the mass of the building.
Light control is always one of the main goals of the design of the building. With this aim and in order to create an appropriate administrative space, the second skin was designed in accordance with the modular structure of the facade and made of aluminum, which can result in an exclusive interior environment using the game of light and shadow as well as providing the possibility of implementing green spaces in the classes as a future development plan under the supervision of unit management. Also, using this approach to designing the north face, the visual identity of the building on both north and south sides is in perfect harmony.
In the organizing the building's interior, at first the circulation shaft of the entire complex was located in the center of the building and at the end of the north side with the aim of providing direct access to the dual administrative units. Furthermore, the placement of service spaces of each unit was implemented in such a way that it could, in addition to centralizing the provision of services, create maximum flexibility in the administrative space.

.jpg)
.jpg)
.jpg)
.jpg)
.jpg)
.jpg)
.jpg)
.jpg)
.jpg)
.jpg)
.jpg)
.jpg)
.jpg)
.jpg)
.jpg)
.jpg)
.jpg)
.jpg)
.jpg)
.jpg)
.jpg)
.jpg)
.jpg)
.jpg)