Summary
Design strategy and execution challenges in this project are centered around the use, height, scale, and location of the building, which is situated in a fabric of buildings for commercial and office use, and the need to align this project's volume with this fabric.
Year
2021
Location
Rash, Iran
Category
Office and Commercial
Service(s)
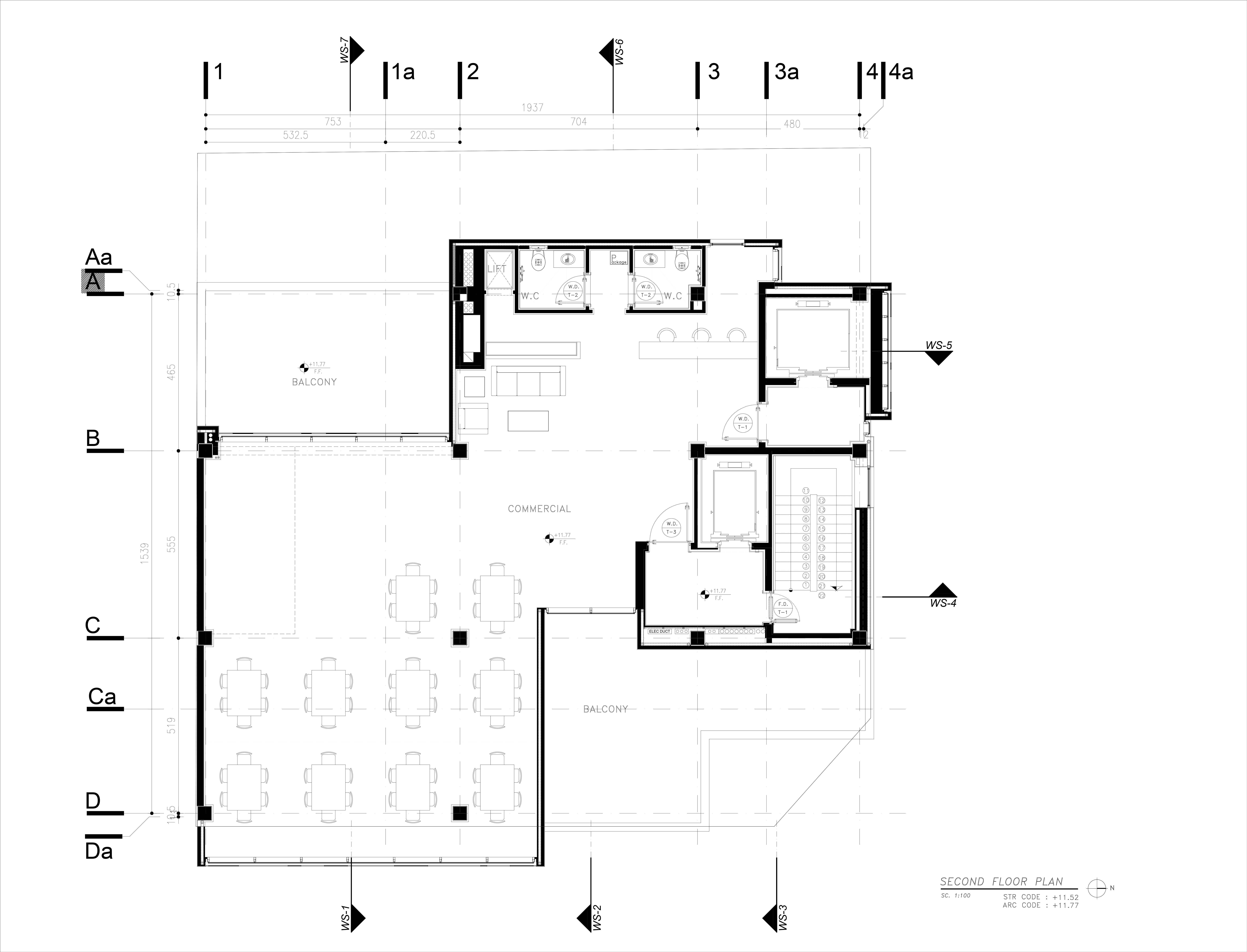
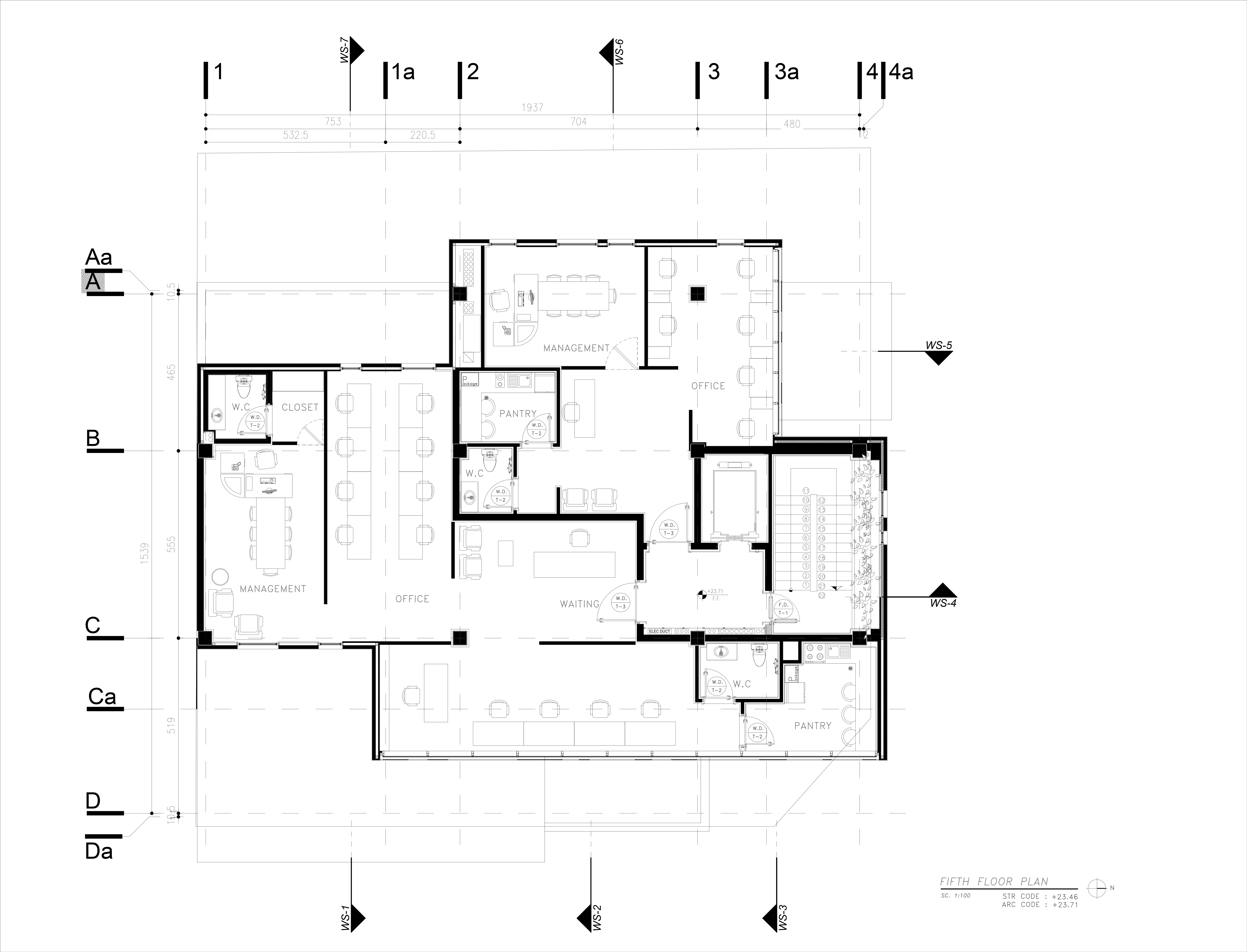
The ECUT commercial-office building is located in the district of Gilan Blvd in Rasht city, Iran, where it used to be a valuable field in the area. The plot area is 400 m2, and the total building area is about 3000 m2, including the ground floor and mezzanine for the conjunctive lobby and commercial use, the 2nd and 1st floors for commercial, one story for basement with a parking garage, and 4 upper stories for office use. Design strategy and execution challenges in this project are centered around the use, height, scale, and location of the building, which is situated in a fabric of buildings for commercial and office use, and the need to align this project's volume with this fabric.
To create harmony with the urban fabric, the designers focused on dividing the large-scale volume into small-scale ones, which corresponded to the adjacent buildings in terms of height and scale. To be more precise, the building's integrity and general character were preserved, while smaller volumes were created. The two-sided sloping roofs were added to the micro-scale boxes created and multiplied in the project in order to achieve harmony with the typology of buildings in Rasht and generally in northern cities of Iran.
To advance the main strategy of the design and take into account the occupancy level limitation, the volumes were slipped on each other and formed open terraces and surplus density. It increased the effective area of each story and enhanced its spatial qualities, and reminded us of the familiar village typology of Rasht city, house with a yard.
In designing details of the buildings, dry ceramic facade technology, and large-cut ceramic was used to avoid facade construction problems in humid areas. Also, the white color in the project was used in harmony with the urban fabric of Rasht city. As a result of the project's location and the ideal urban view around it, we are proposing wide transparent surfaces in the facade. These surfaces enable the project to be perceived as a building designed for office and commercial use while also giving the users the opportunity for maximum views.
Lastly, the designers of the ECUT office-commercial building aim to harmonize the scale, shape, and dominant color with the urban fabric. The design process also included guidelines to achieve the above goal, as well as to enhance the interior space.
























