Summary
The main idea that shapes the body of the project was imposing a basic unit in the structure of the project which is attributed to the basic module in Iranian traditional architecture, as well as defining a setback-cantilever strategy to achieve more open space at the plot and some private yards in upper levels, and ultimately, creating a connection in the middle part of a project to create volumetric integrity.
Year
2022
Location
Tehran, Iran
Category
Residential [Multi-Unit]
Service(s)
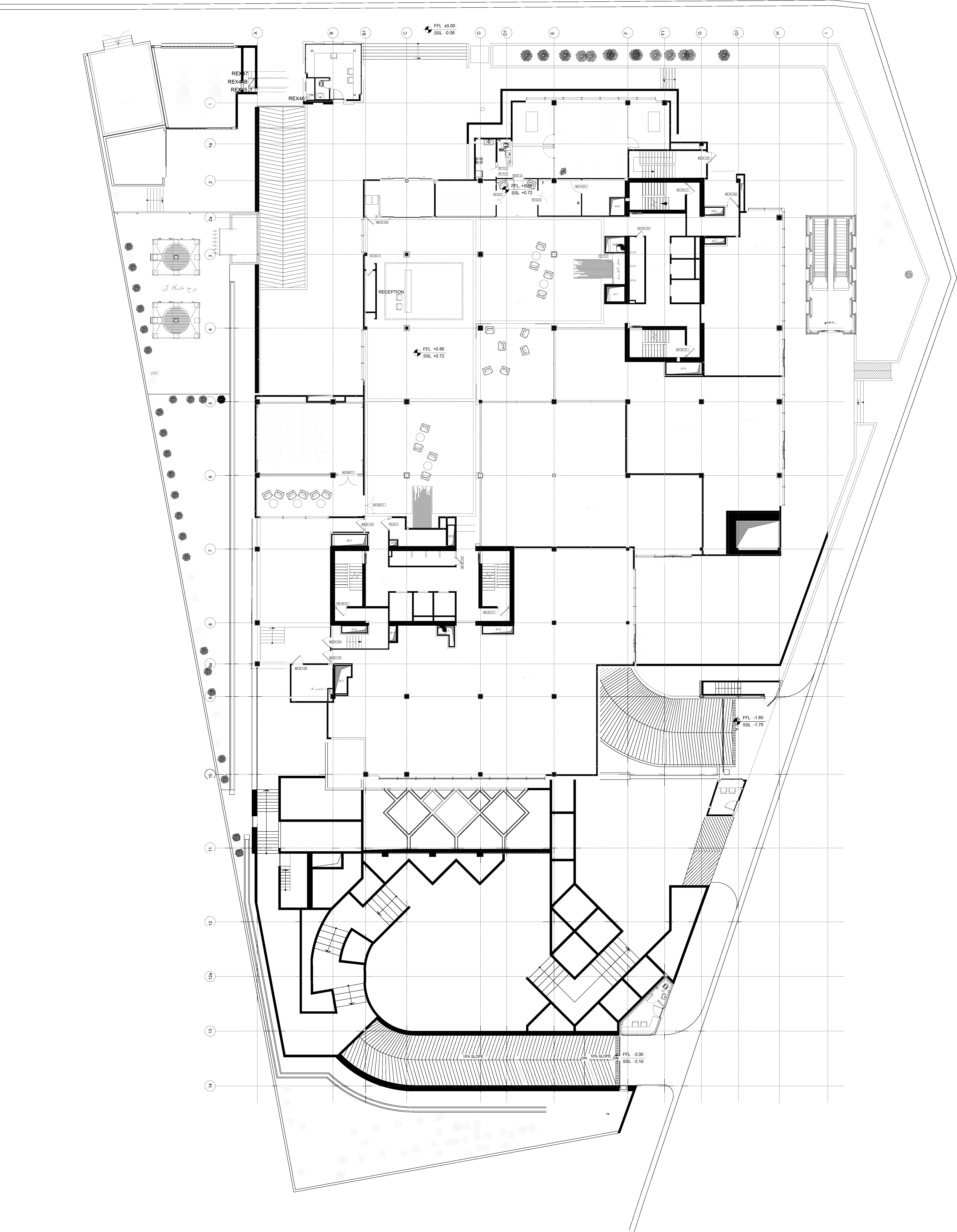
Many cities in the world have accommodated twin towers with different functions themselves. Considering the skyline, these twin towers generally have a typical shape, presenting two tall buildings adjacent to each other with some discrepancies in façade design. Moreover, despite the variety in the form and shape of the towers, the common specifications of most of them had been inducing a sense of massive and inhuman scale to a viewer in front of the surrounding urban space. In the Mika Residential Towers Project, the designers try to focus on changing this pattern and creating a new type of twin structure for residential use.
The main idea that shapes the body of the project was imposing a basic unit in the structure of the project which is attributed to the basic module in Iranian traditional architecture, as well as defining a setback-cantilever strategy to achieve more open space at the plot and some private yards in upper levels, and ultimately, creating a connection in the middle part of a project to create volumetric integrity.
It can be seen that the types of traditional residential architecture in Iran from a long time ago to the middle of the twentieth century, despite some differences in form and details, have been defined in an open-closed space duality. It is obvious that with the modernization of cities and the transformation of residential buildings into high-rise buildings, the quality of life of citizens has greatly changed and declined. By using the basic module, the design team not only has borrowed the concept of “module” and micro-scale modules from traditional Iranian architecture but also by creating a setback on the upper floors, has used the duality of open and closed spaces in a new form to return greenery and light to residential units. The big challenge of this design is the use of units that have always been developed in two dimensions, but this time they fit together in a more complex three-dimensional form. The result of this concept is to improve the quality of life of citizens by taking advantage of the microclimate created by greenery and sunlight.
As a result, public spaces and plazas have been used extensively to emphasize the hierarchy of movement from urban space to residential use, in addition to reducing the level of building area on the ground floor. Also, unlike the existing structures, an attempt has been made to create the final form of the building in more interaction with the city. In this way, the two vertical towers have become practically an integrated structure of residential and communal spaces as well as open and closed spaces; so it seems that separating the two towers and identifying the border between them is impossible. The result of this integration is moving away from existing prototypes and moving toward structures that have constructive interaction with the city. Also, taking advantage of the familiar form of courtyard houses in the residential twin tower causes more emphasis on the compatibility of residential use and building form.
The location of the project in the city has caused the target community to be bourgeois users who are practically unable to live in large houses with a special yard. The use of these units consisting of houses and yards on the floors not only does not violate the complex rules and regulations of urban planning in Iran but also it can be considered as a pattern to improve the quality of citizens of large cities. On the other hand, the location of the hypermarket and other commercial spaces on the ground floor of the project has largely met the daily needs of the residents and reduced the referral of residents to other neighborhoods and as a result, will reduce the traffic around the project and make the local traffic smoother.

.jpg)
.jpg)

.jpg)
.jpg)
.jpg)
.jpg)
.jpg)
.jpg)
.jpg)
.jpg)
.jpg)
.jpg)
.jpg)





